BEHÖVER DU HJÄLP MED RITNINGAR FÖR BYGGLOV OCH TEKNISKT SAMRÅD, STARTBESKED?
VI ERBJUDER SNABB OCH ENKEL HJÄLP MED ALLA RITNINGAR SOM KRÄVS FÖR BYGGLOV OCH TEKNISKT SAMRÅD, UTAN STRESS. OAVSETT VILKEN KOMMUN DU TILLHÖR, FINNS VI HÄR FÖR ATT ASSISTERA DIG.
Våra Tjänster
Vi erbjuder komplett service för alla typer av byggprojekt
Så Fungerar Det
Enkelt och smidigt från start till mål
Kontakta oss


Ring, maila eller fyll i vårt kontaktformulär så hör vi av oss inom 24 timmar.


Behovsinventering
Vi går igenom ditt projekt och vilka handlingar som behövs för din kommun.


Framtagning av ritningar
Våra erfarna ritare tar fram alla nödvändiga ritningar enligt gällande bygglagstiftning.


Leverans
Du får dina ritningar digitalt och kan direkt påbörja din bygglovsansökan.


Support
Vi finns här för att hjälpa dig även efter leverans om frågor skulle uppstå.
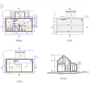
Exempel på Våra Ritningar
Professionella och detaljerade ritningar som uppfyller alla krav















Därför Väljer Kunder Oss
Vi har hjälpt hundratals kunder med deras byggprojekt i hela Sverige
800+
Nöjda kunder
Vi Hjälper Kunder I Hela Sverige
1700+
Godkända bygglov
11+
Års erfarenhet
100%
Kvalitetsgaranti
Transparent Prissättning
Inga dolda kostnader - du vet exakt vad du betalar för
Nya bygglovsregler från
1 december 2025
1. Större tillbyggnader utan bygglov
Du kan bygga till upp till ca 30 m² utan bygglov på en byggnad.
Höjden får normalt inte överstiga huvudbyggnadens taknock.
Totalt gäller max 30 m² bygglovsfria tillbyggnader per byggnad.
2. Fasadändringar på småhus kräver ofta inte längre bygglov
För en- och tvåbostadshus behövs normalt inte bygglov för:
ändring av fasadmaterial
målning eller kulörbyte
byte av fönster
installation av solceller eller takfönster
3. Nya regler för komplementbyggnader
(tidigare “attefallshus”)
Begreppet attefallshus används mindre i lagtexten och ersätts ofta av:
komplementbyggnad (garage, förråd m.m.)
komplementbostadshus (fristående bostad).
Maxstorlek utan bygglov:
30 m² inom detaljplan
50 m² utanför detaljplan
Total bygglovsfri yta per tomt:
45 m² inom detaljplan
65 m² utanför detaljplan.
4. Flera små byggnader tillåts på samma tomt
Istället för bara ett hus kan man nu ha flera mindre byggnader så länge den totala ytan håller sig inom den gemensamma “potten”. Exempel:
gästhus
kontor
förråd
uthyrningsbostad
Viktigt: Även om bygglov inte krävs måste byggnaden fortfarande uppfylla tekniska krav i byggreglerna (säkerhet, tillgänglighet, hygien m.m.).
Kontakta Oss
Vi svarar inom 24 timmar på alla förfrågningar
Skicka Oss Ett Meddelande
Fyll i formuläret så återkommer vi snarast
Telefon
E-post
info@bygglovx.se
Verksamhetsområde
Oavsett vilken kommun du tillhör, finns vi här för att assistera dig.
Öppettider
Måndag - Fredag: 08:00 - 17:00
Vi svarar på e-post och meddelanden inom 24 timmar
BYGGLOVX
Professionella bygglovsritningar och konstruktionsritningar för hela Sverige. Snabbt, enkelt och stresslöst.
Våra Tjänster
SNABBLÄNKAR
© 2026 BygglovX. Alla rättigheter förbehållna.